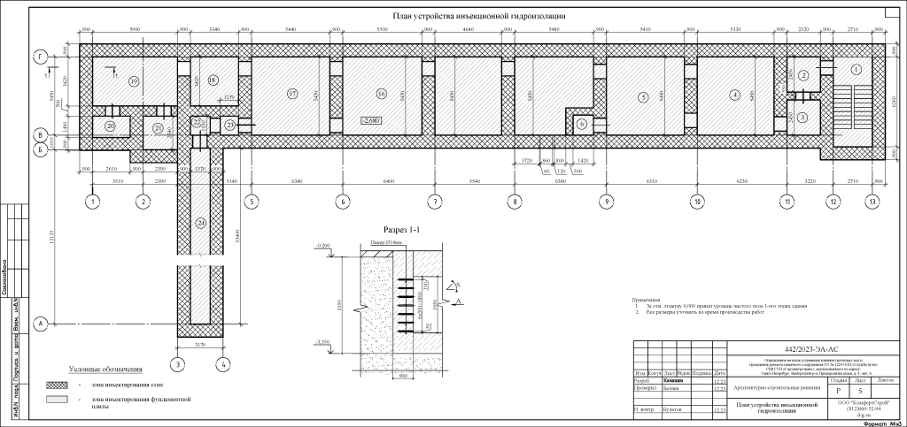
Разработали проект для проведения ремонта бомбоубежища в Выборгском районе на Придорожной аллее

29 декабря 2023

#

Оставьте заявку на
расчёт стоимости работ
по вашему объекту

После заполнения формы мы свяжемся с Вами в рабочее время Пн-Пт 9:00-18:00 и обсудим детали вашего объекта

#